您好!欢迎光临海普欧环保集团有限公司网站! 网站地图
全国服务热线:
18853631118
当前位置: 首页 >> 新闻中心

新闻中心

带你了解EIES污水处理技术
  EIES生态污水处理技术(E代表生态,I代表智能,E代表高效,S代表节能)是目前世界上比较新的生物处理技术,它吸收了传统的污水生化处理和国际先进生态污水处理技术的优势,同时充分考虑了国内污水水质特点,是经过多年的科学实验与实践研发出来的。该技术在国内尚属首家,其中首次利用EIES污水处理技术处理生活污水,达到国际先进水平,具有推广价值。

EIES污水处理技术借鉴自然界水体自净原理,加入人工强化技术,在系统中营造了一个平衡的自然生态环境,是传统污水处理技术与先进技术的结合。系统内部具有高程度的生物多样性,同时由于其内部形成了一种自然生态平衡,系统的运行具有较高的稳定性。

 

 

技术简介:

EIES生态处理技术是一种生态工程方法,外观与周围景观相协调,由人工基质和基质上存活的多种生物构成。其基本原理是在特殊的基质上有针对性地营造稳定的生态环境,形成生态系统。当污水通过系统时,其中的污染物质和营养物质被系统吸收或分解,湿地在整个处理过程中对水中污染物进行好氧、厌氧、吸附、过滤、植物吸收转化、杀菌等过程,氨氮被植物充分吸收,使水得到净化。通过EIES生态处理系统的结构和不同植物的选配比例,可以灵活地达到不同的水力负荷和有机负荷。同时,生态处理工程使污水处理与环境生态建设有机结合,在处理污水的同时还可以创造新的生态景观。

EIES生态处理技术具有高程度的生物多样性,在非常稳固和有极强弹性的基础上对污水进行高效处理,满足处理要求。

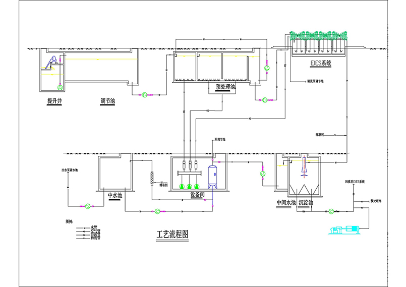
工艺流程图:

 

主要特点:

1. 应用范围广泛

EIES 生态处理系统可以满足对城市生活污水、有机工业污水、畜牧养殖废水、和医院等特殊行业污水的处理。EIES 生态处理系统最普遍用途包括以下方面:

——城市街道、生活小区、宾馆饭店的绿化、道路清洗、冲厕和洗车等用水;

——农场、旅游风景名胜区、度假中心和商业场所等日常污水的处理和回用;

——农业水栽培、风景区水源涵养、河道水质改善等。

2.适应性强

EIES生态处理系统对地形、空间、气候和污水水质等没有特殊要求。系统的占地也可根据用户的具体情况及需要而确定。由于系统采用模块化设计,因此,一个系统可以集中建造,也可以利用零星用地分散建造,在处理总量上满足用户要求。EIES生态处理技术本身的模块化设计可根据业主的实际情况灵活建造,减轻了用地压力。全自动运营,维护方便系统投入运行后,在平衡的生态环境中,能够自动完成对污水的三级处理,具有自我调节功能。系统运行过程中只需兼职人员看管,由于这种生态技术对设备的依赖较少,因此,减少了人为错误操作造成系统运行不正常的可能性,故障点较少,使全自动运营成为可能,维护方便。系统污泥量少,无需清理。

3.出水水质稳定可靠

EIES生态处理系统一旦达到生态平衡,便不易遭到破坏,能在较大范围内抵御外来不同浓度有害物质的冲击,确保出水水质稳定达标。

4.系统景观化

EIES生态处理系统在北方地区可以根据用户需要设计不同风格的外观。在南方,可配合周边环境,辅助种植一些观赏性水生植物,使这个没有异味的生态处理系统成为一个科技与人性化相结合的景点。

 

 

5.易于维护

EIES生态处理系统投入运行后,能够自动完成对污水的处理,具有自我调节功能。由于这种生态技术对设备的依赖较少,而且运行过程中无需专业人看管,因此,减少了人为错误操作造成系统运行不正常的可能性,故障点较少,使全自动运营成为可能,维护方便。

6.建造、运行费用低

EIES生态处理系统体现了很好的性价比,几乎所有的投资均体现在系统建设时的一次性投资上,系统的运行费用非常低,仅需要保证设备日常运行用电即可,用户不需要对系统定期投加药物、频繁清理污泥、理堵塞和更换填料,从而减少了周期性投资。EIES生态处理技术大大减少了处理站后期的费用成本,满足业主对后期成本支出的计划。

7.安全、环保

EIES生态处理系统运行时没有噪音,并且很好地解决了污水异味的问题。同时,污水在处理过程中,因为不需添加任何化学药物,不会造成对水体的二次污染。系统产生的污泥全部循环利用,在系统内部得到消耗,无需人工清理。因此,EIES生态处理系统不产生水、气、噪音和固体废物的污染问题。EIES生态处理技术属于绿色环保技术,符合国内环保行业的发展趋势。

地区分站: 北京市  天津市  河北省  山西省  内蒙古  辽宁省  吉林省  上海市  江苏省  浙江省  安徽省  福建省  江西省  山东省  河南省  湖北省  湖南省  广东省  广西省  海南省  重庆市  四川省  贵州省  云南省  西藏  陕西省  甘肃省  青海省  宁夏  新疆  诸城  
首页|关于我们|产品中心|成功案例|视频中心|联系我们
 
海普欧环保集团有限公司
地址:山东省潍坊市诸城市东环路56号
手机:18853631118
免费咨询热线:400-863-7369
联系电话:0536-6353818
 
 
版权所有:海普欧环保集团有限公司
备案号:鲁ICP备15034703号
地区分站